Gerne vermelden wir wieder einen wichtigen Schritt Richtung Baubeginn:
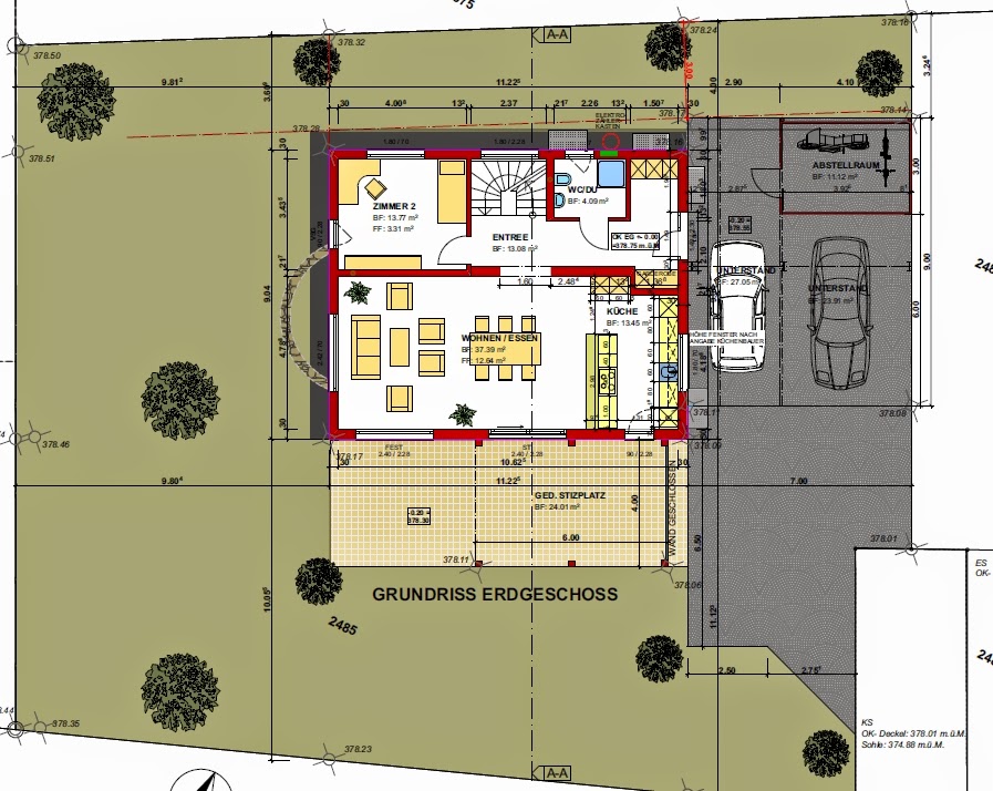
Nach dem Treffen vom vergangenen Donnerstag haben wir uns heute mit unserem Architekten über Mittag getroffen. Mit im Gepäck waren 14 Grundriss- und 11 Fassadenansichtspläne. So viel Papier ist neben den ganzen Formularen notwendig um in unserer künftigen Wohngemeinde die Baueingabe für ein Einfamilienhaus einzureichen. Alle Pläne und Formulare mussten noch unterzeichnet werden, damit alles seine Richtigkeit hat.
Morgen wird das ganze Papierpaket durch unseren Architekten zur Gemeinde gebracht.
Nun sind auch die Pläne fertig, es haben sich bisher nur Details geändert:
Wie erwähnt, einige Dinge haben sich geändert. Die PV-Anlage haben wir auf das Maximum, 32 Panele, ausgedehnt. Falls diese später hätte vergrössert werden sollen, wäre der Aufwand um ein vielfaches höher gewesen.
Auch Weberhaus hat unseren Blog entdeckt (ob da wohl wer nachgeholfen hat?). Vielen Dank an WeberHaus für die guten Wünsche, wir hoffen auch auf einen reibungslosen und unkomplizierten Ablauf. Gespannt warten wir auf den Terminplan und den Termin für die Ausstattungsberatung.
Und am Dienstag haben wir von der Amtsschreiberei, bei der wir vor einigen Wochen den Grundstückskauf besiegelt haben, die Mitteilung bekommen, dass wir seit Montag als Landbesitzer im Grundbuch eingetragen sind. Hat also alles bestens geklappt und heute hat auch schon unsere Bank reagiert und einen grossen Betrag vom Konto abgebucht um das Land zu bezahlen. Tschüss du liebes Geld :). Aber immerhin haben wir dafür was ganz tolles bekommen, sozusagen das Fundament unseres Haustraumes 2015.
So, genug für heute :)
Gruss
Jürg






Wir werden den Blog ebenfalls verfolgen, da WeberHaus damals mit dem Generation 5 genau unseren Geschmack getroffen hat. Wir haben letztendlich nun aber doch einen anderen Anbieter ausgewählt und sind gespannt was für Erfahrungen wir hier so wiederfinden werden.
AntwortenLöschen32 Paneele, schick. Wir haben erstmal nur die kleine Version mit 12 genommen, hoffentlich können wir das in ein paar Jahren dann mal aufrüsten.
AntwortenLöschenDas mit dem Nachrüsten haben wir auch überlegt. Aber später wird es doch teurer, da das Haus wieder eingerüstet werden muss,... Mal sehen wies am Ende kommt ;)
Löschen